2020

bluestone

CAD Technician , Interior Designer

bluestone
coffee company

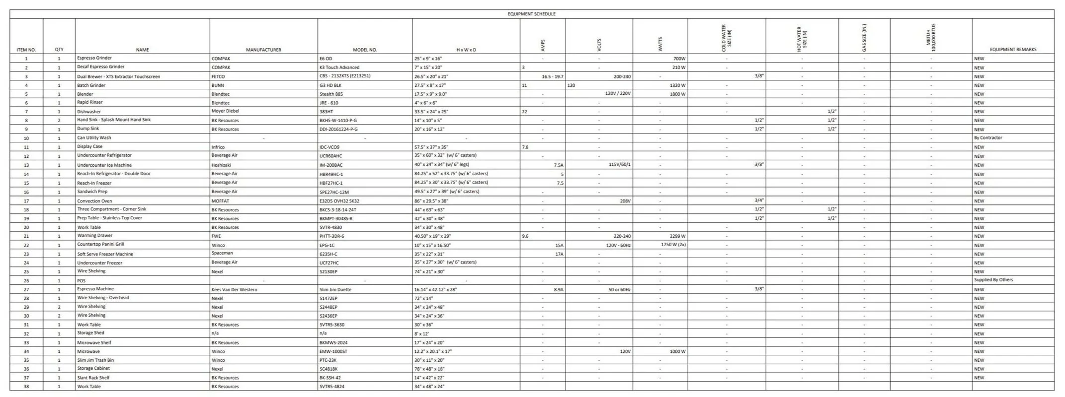
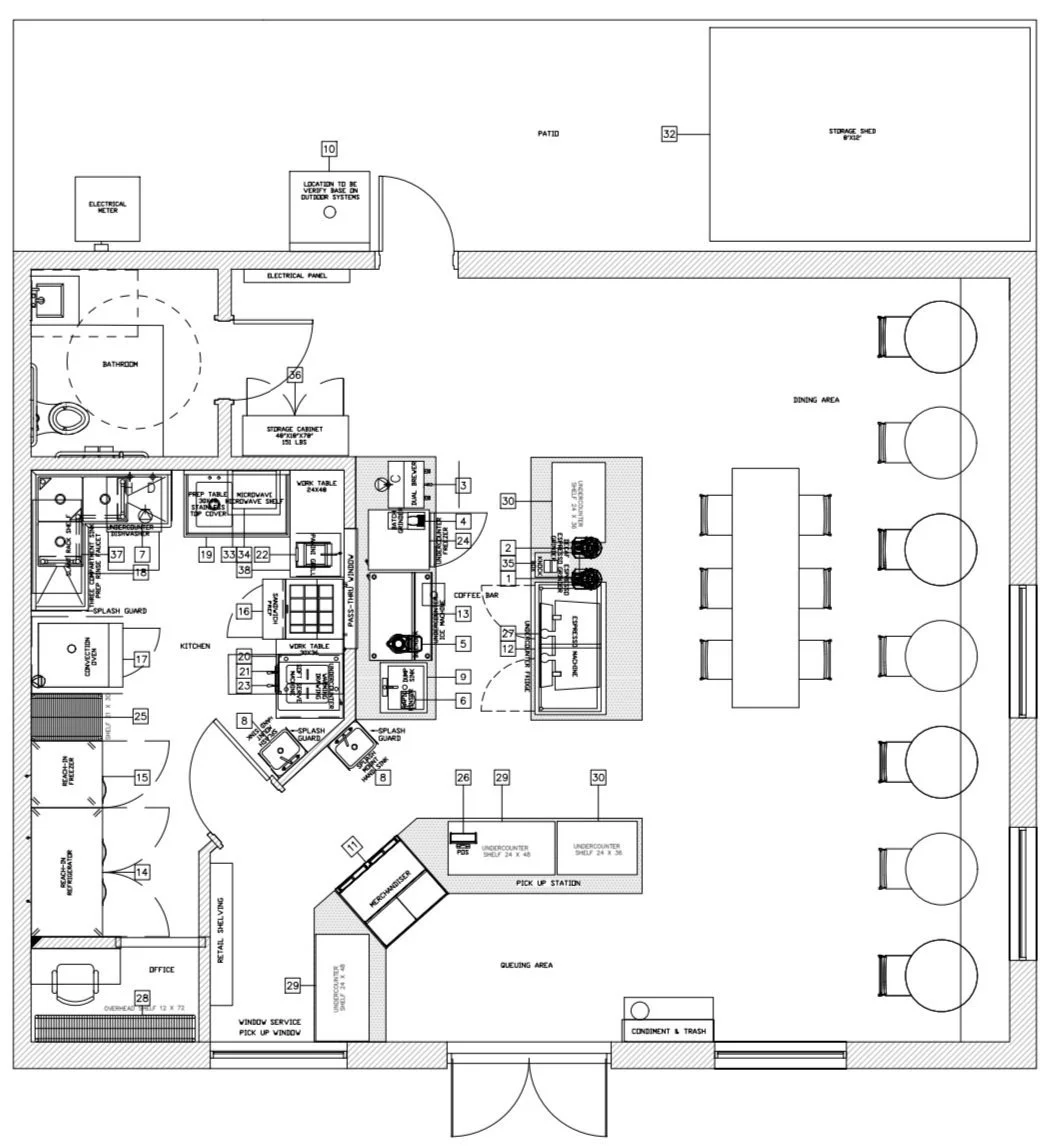
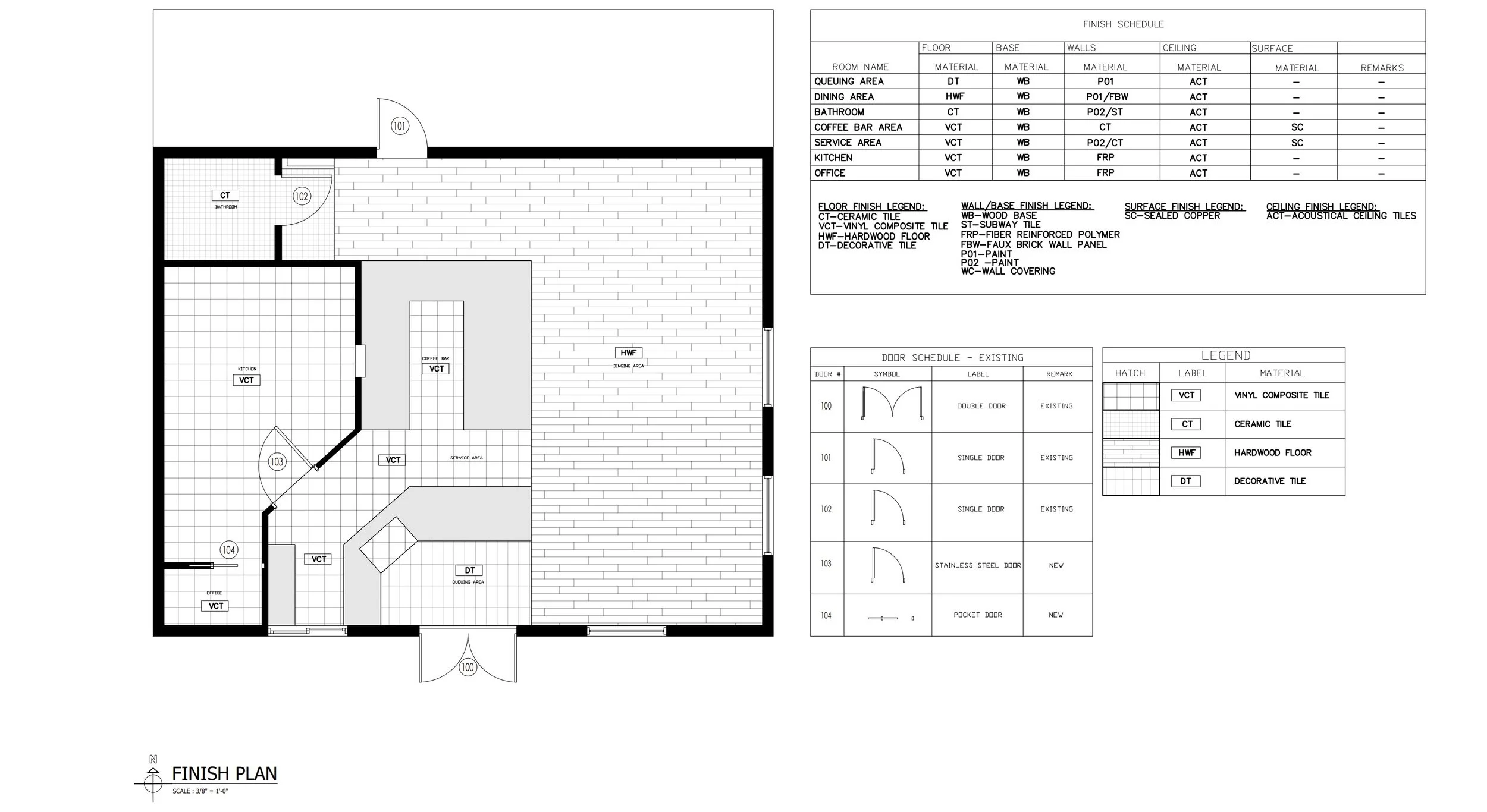
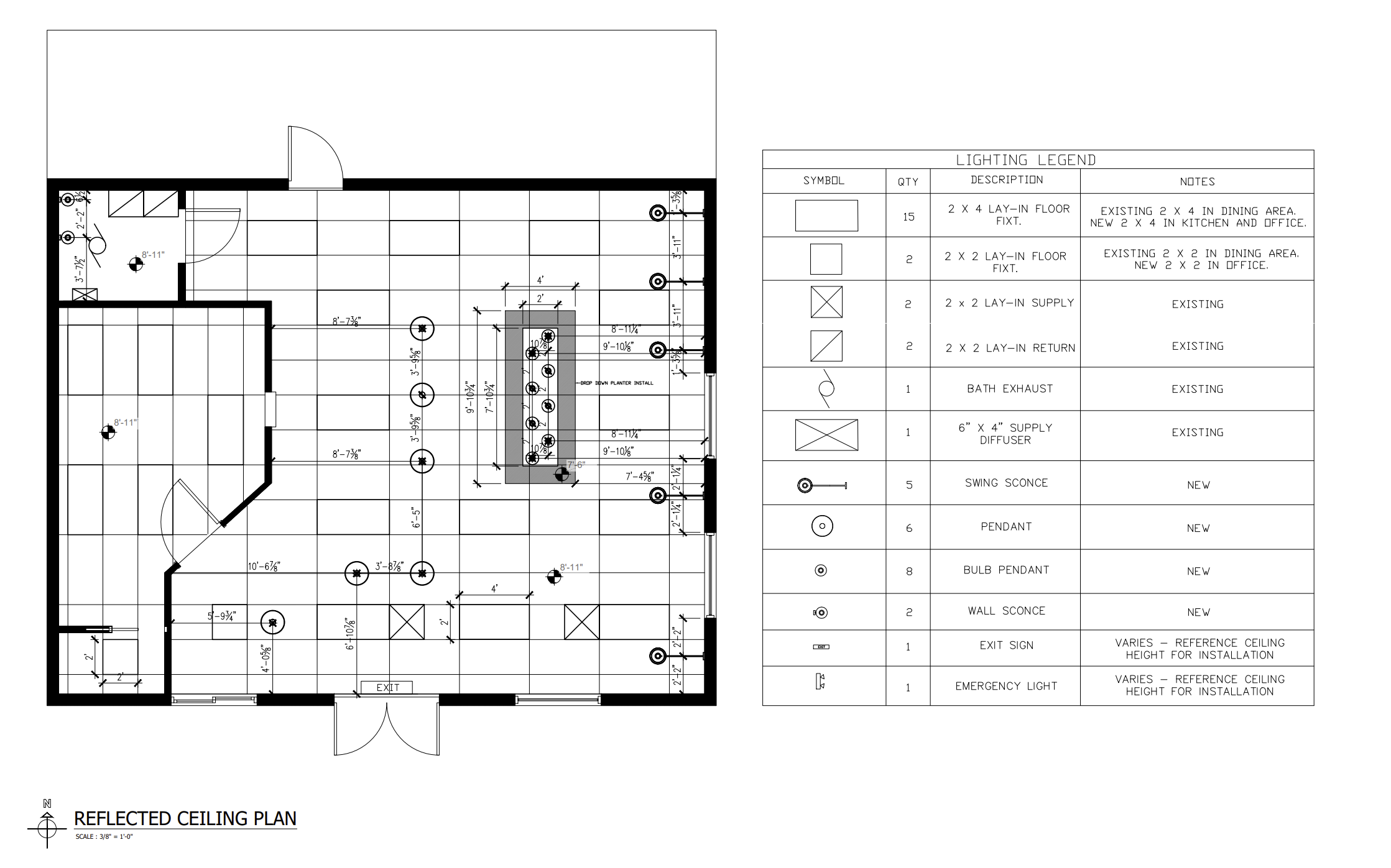
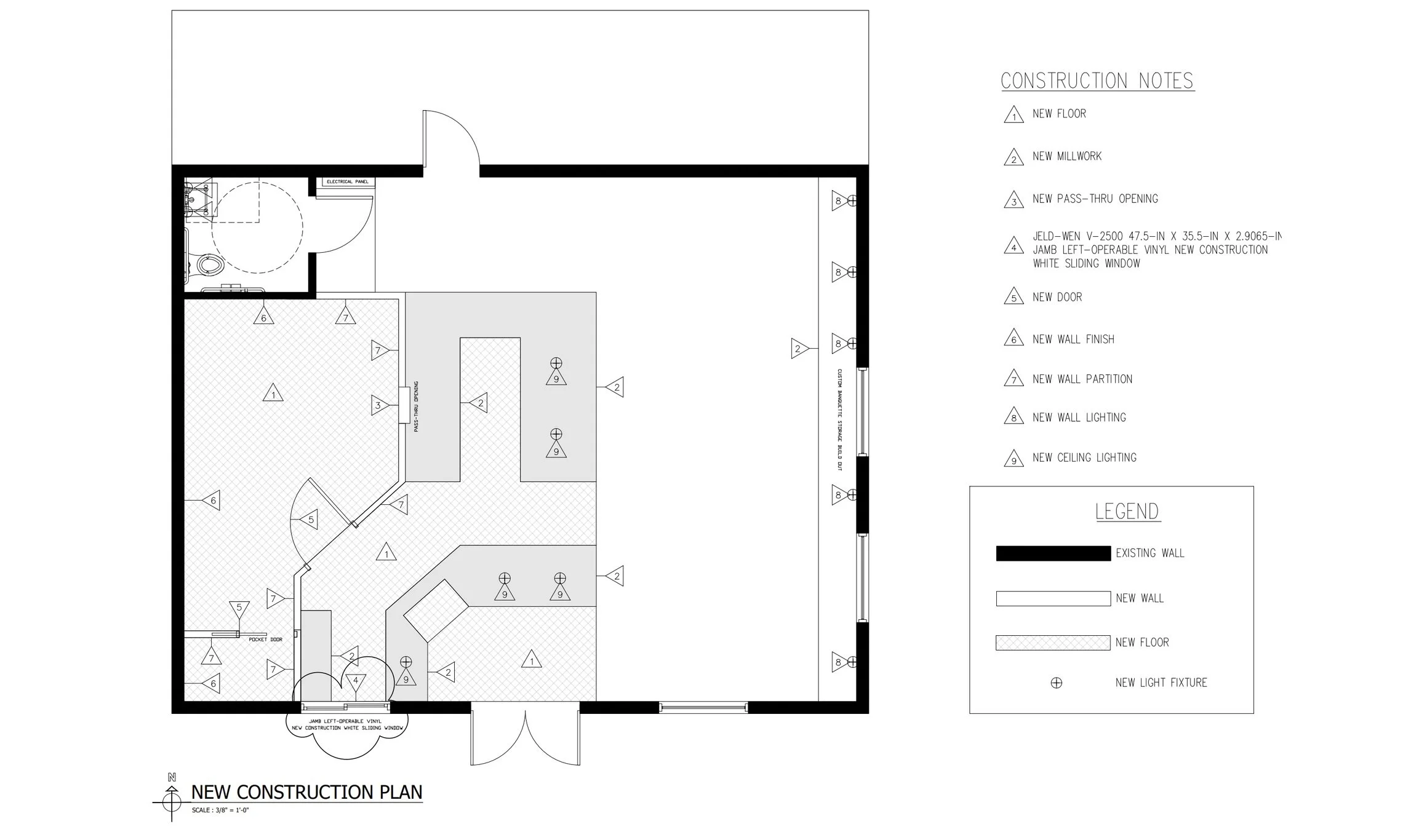
A former beauty parlor into a coffee shop through adaptive reuse. This creation is a complete set of architectural drawings and lifelike renderings, tailored to fulfill the client's vision. This vision included incorporating signature elements such as the iconic slab table, a creatively repurposed slat wood wall adorned with their personal quote, as well as a suspended lighting scheme, generously adorned with lush greenery to achieve a harmonious and inviting atmosphere.

Software: SketchUp , AutoCAD , Lumion

Architectural Plans

Renderings

Previous
Previous

Wisteria

Next
Next

Food Court Counter