2022 - 2023

DRIP coffee bar

design + fabrication consultant

DRIP
Coffee bAR

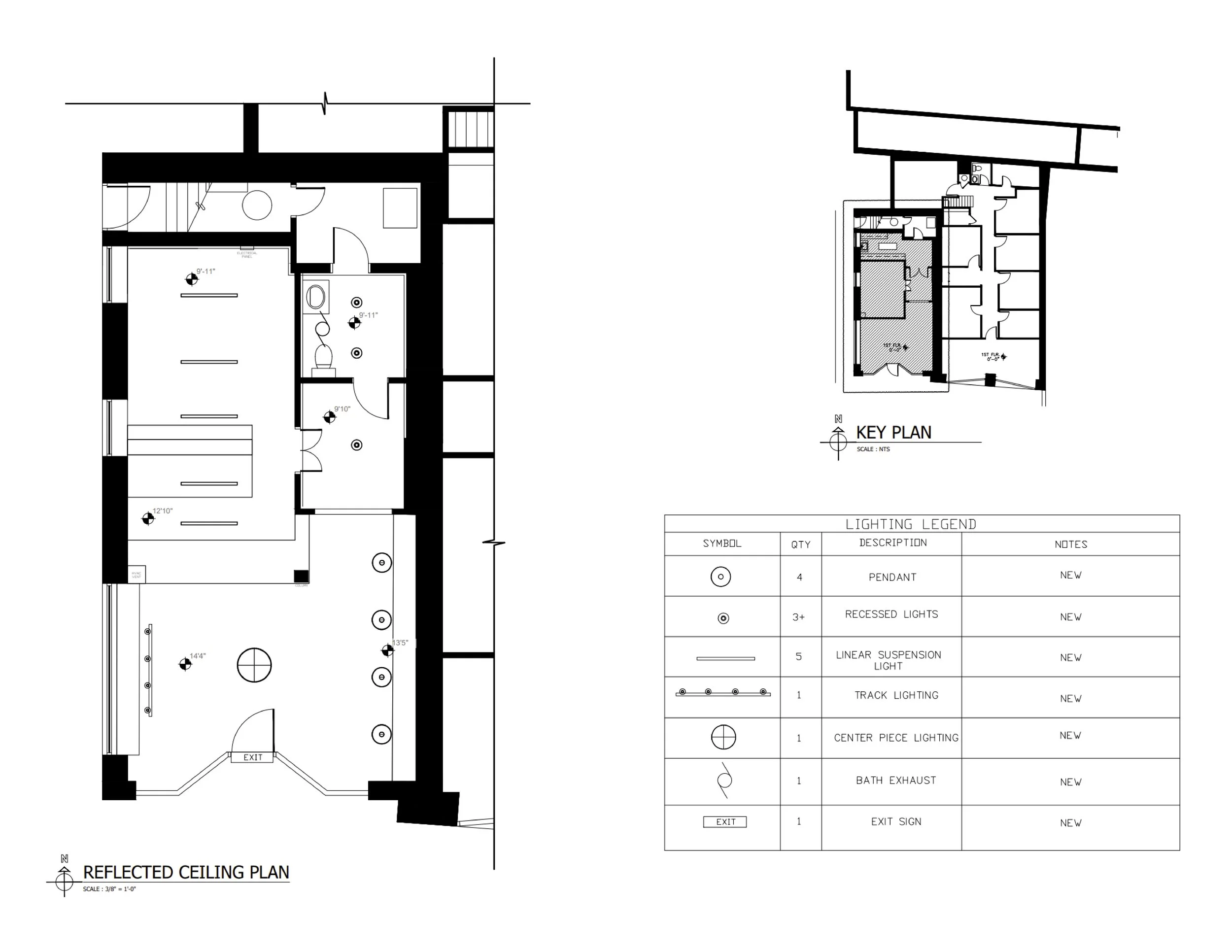
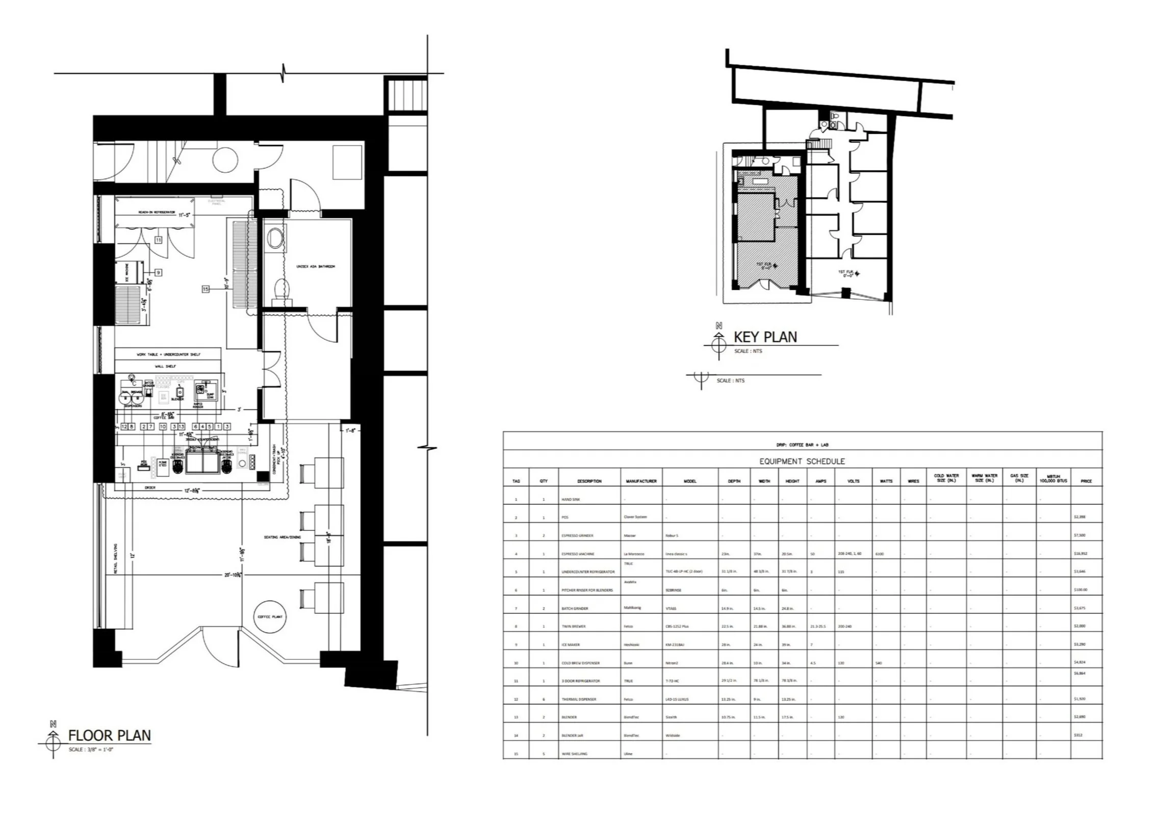
Located in Boone, North Carolina, this former law firm has been transformed into a coffee establishment. The project involves creating comprehensive equipment schedules, floor plans, and detailed millwork drawings.

Software: AutoCAD , SketchUp

Floor Plan

Reflected Ceiling Plan

Millwork Drawings

Next
Next

Spill The Beans